动态中心
news

动态中心
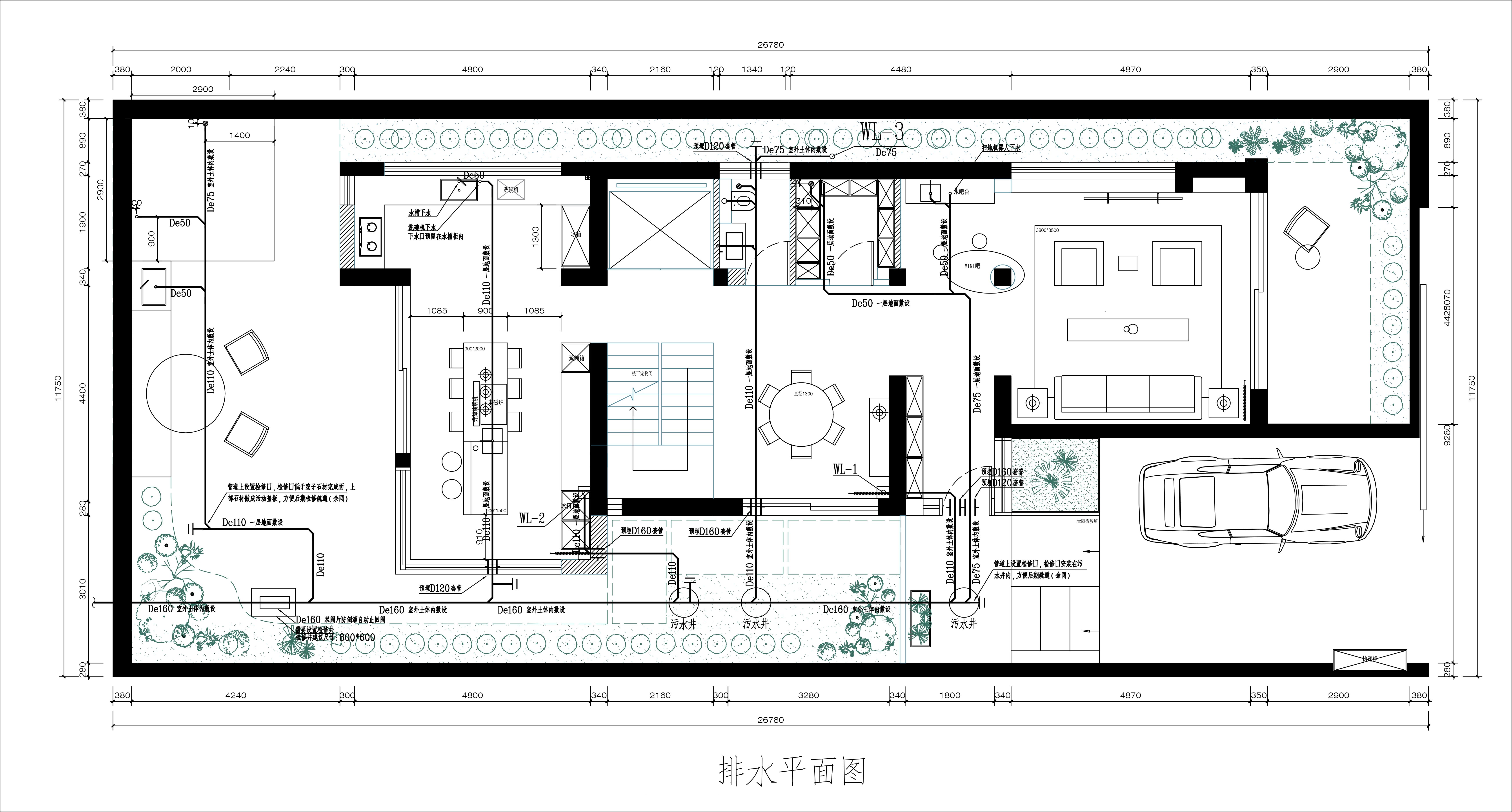
同层排水选HDPE还是PVC?不同场景下的最优解
在现代住宅和公共建筑的排水系统设计中,“同层排水”因其便于检修、减少楼下渗漏风险等优势,正逐步取代传统的异层排水方式。然而,在管材选择上,HDPE(高密度聚乙烯)与UPVC(硬聚氯乙烯)两种主流材料常常让设计师、开发商甚至业主陷入纠结:是追求经济实惠,还是看重长期安全与维护便利?
本文将从材料特性、连接方式、施工要求、适用场景及综合成本等多个维度,深入对比HDPE与PVC在同层排水系统中的表现,并根据不同需求提供针对性的最优推荐。

HDPE管是由百分之百单一纯原料北欧化工炭黑因子(即使在北欧化工加入碳黑及抗氧化剂时,也是由原料中聚合而成)经挤压加工制成,不加入任何填充剂或可塑剂,亦绝未掺入任何再生料,故管体表面光滑洁净,切口光洁均匀,70年保证不发生断裂。 | PVC管由PVC粉掺入填充剂(如石粉)可塑剂及稳定剂等经挤压加工而制成,石粉的可塑性及稳定剂根据加入量的比例多少对管材的性质、品质都会发生不同的影响。 | |
| HDPE加入有炭黑因子,可过滤太阳光紫外线的碳黑粒,故耐候性能极佳。 | ||
胶水连接不可靠,需要经常维修,维修需敲掉回填层,费用巨高 | ||
PVC在同层排水中最致命的问题在于——胶粘接口在回填、温度变化或轻微沉降后极易开裂渗水,而一旦埋入混凝土或回填层,维修几乎等于“拆家”。
场景1:高端住宅 / 别墅 / 长期自住同层排水项目
业主对居住品质、防水安全、后期维护成本极为敏感,HDPE的热熔、电熔连接杜绝接口渗漏,70年使用寿命,匹配建筑生命周期,且降板更薄,大幅度提升层高利用率。
再加上同层专用大水封地漏,防臭效果更持久稳定;其柔韧性更能适应轻微结构变形,适合地震带或软土地基区域使用,如江苏、上海、天津、广州、深圳等沿海地区。
场景2:保障房 / 租赁公寓 / 成本敏感型项目
对于预算有限,且使用周期可能较短(如10–15年)。若严格控制施工质量(如避免回填踩压、使用优质胶水、做闭水试验),PVC仍可满足基本需求。
风险提示:后期一旦发生渗漏,维修成本远超初期节省的材料费,且影响租户满意度与品牌声誉。
场景3:既有建筑改造 / 老旧小区同层排水升级
改造空间受限,无法大幅降板。HDPE排水系统降板低至9cm即可实现同层排水,且焊接连接可靠性高,避免“改完就漏”的尴尬
多地旧改项目反馈,PVC改造后返修率高达15%以上,而HDPE系统几乎零渗漏投诉。
场景4:南方潮湿地区 / 北方严寒地区
南方地区高湿环境加速PVC胶粘剂老化,更容易出现渗漏风险。北方地区冬季低温PVC易变脆,导致管材破裂;HDPE在-60℃至60℃范围内性能稳定,特别适应极端气候。
1、直击行业痛点,根治“堵漏吵臭”
海瑞斯HDPE同层排水系统从源头破解住宅排水四大顽疾,通过海瑞斯通过智能设计系统能精准计算每户排水当量,确保管道内水气比稳定在0.5–0.7的理想区间;配合高性能防臭地漏与静音结构设计,系统实测噪音仅约23分贝,远优于国家“好房子”标准(≤33分贝)。十余年来多个项目实现“零漏水、零堵塞、零返臭、零维护”的交付承诺。

2、全电熔连接新技术,安装快、密封强、易维护
海瑞斯首创“全电熔平壁式”连接体系,从排水入口到出口全部采用集成化电熔管件(如电熔Y三通、45°弯头、偏心大小头等)连接,实现“搭积木式”高效装配。专用智能焊包免设参数、插电即焊,安装效率较传统电熔提升50%,较热熔提升80%。连接后内壁光滑无翻边、不缩径、不挂垢,杜绝堵塞隐患,且支持故障部件单独更换,大幅降低后期运维成本。

3、精工智造,99.9%以上产品合格率
依托上百套由国内顶尖模具厂商定制的高精度模具,海瑞斯实现HDPE管材管件的极致一致性。每件产品历经多道工艺检测,涵盖电流、流量、壁厚、噪音、连接强度等关键指标。环刚度达7.11 kN/m²,纵向回缩率仅0.1%,抗冲击性能为PVC的8倍,所有性能均严格符合CJ/T 250-2018等国家标准,品质稳定可靠。

4、超强环境适应性,覆盖极端应用场景
系统可在-40℃至+60℃环境下长期稳定运行,并可瞬时排放95℃废水。标配F120级防火套管,满足超高层(如134米希尔顿国际酒店)、医疗康养、工业排水等严苛场景需求,真正实现“一系统通用于多领域”。

5、全系统一体化,打造完整排水生态
海瑞斯排水系统涵盖排水管材管件、防臭地漏、隐蔽式水箱、静音管卡、地面调坡支架与支撑组件,形成从立管到地漏末端的全链路HDPE排水解决方案。配合“王牌安装”服务体系,确保设计、施工、验收无缝衔接,系统性能最大化释放。

6、智能给排水设计系统,实现毫米级精准交付
海瑞斯通过智能给排水设计系统贯穿设计、施工与运维全周期,更能支持复杂户型的管道排布。同时工厂可按项目需求定制非标管长(如2.22米、1.73米),实现“毫米级适配定制”,解决异形空间安装难题,提升施工精度与效率。

7、超长服役寿命,设计寿命100年+
海瑞斯凭借优异的材料稳定性——炭黑含量2.3%、200℃氧化诱导时间超30分钟、熔体质量流动速率与原材料高度一致——海瑞斯HDPE系统具备卓越抗老化能力。实际项目运行超十年仍性能如初,理论寿命可达100年以上,远超传统UPVC管材。

随着人们对居住安全与长期成本的认知提升,以及国家对好房子建筑品质要求的提高,HDPE排水系统在同层排水领域的应用比例逐年上升,已经成为高端楼盘的标配,至少50年内几乎无需维修,综合成本远低于PVC,全生命周期成本更划算。





